
您現在正在:首頁>>新聞中心>>公司新聞
湖南酷威冷暖中央空調工程設計安裝常見問題及解決方案匯總:
1、風管彎頭處或彎頭較近處設置風口與分支
現象: 某中央空調工程采用吊頂散流器下送風,沿墻壁布置回風口側下回風,但有一送風管彎頭處與彎頭較近處設置送風管分支,如圖 8 所示,造成分支管風量遠小于設計值。
原因: 從風管彎頭彎曲處的內曲面到直線部分,在風管寬度約 8 倍(導流葉片時約 4 倍)以下的位置上設置分支或者噴出口時,風量會不足(極端情況下不出風),一般盡可能延長直線距離(離彎頭一定距離)設置風口或風管分支。設計者為了均勻布置回風口使氣流組織均勻合理,而忽略了彎頭與彎頭較近的距離不宜設置風口或風管分支。
整改措施:
(1)更改彎頭與彎頭較近處的分支位置,分支與彎頭要有一定的距離;
(2)在彎曲處適當設置導流葉片,如圖 9 所示;
(3)在彎頭處增設靜壓箱,如圖 10 所示。
2、中央空調末端設計不當引起噪音超標
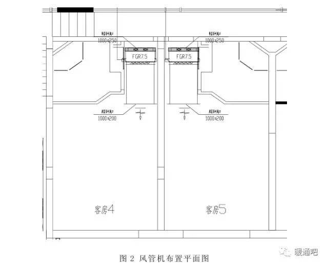
現象一: 某酒店客房采用FGR7.5/A1(風量 1250m3 /h,機外靜壓 40Pa)風管機直接接風口側送風,風管機布置如圖 1 所示,機組運行后噪音超標,測試噪音高達 52dB(A),引起客戶的不滿。
原因:
(1)機組選型錯誤,FGR7.5/A1 風管機帶有 40Pa 的機外靜壓,如果直接接風口側送風,則機組因靜壓偏大,導致機組噪音偏高,安裝時又未對機組做特殊減噪處理;
(2)為了降低設備初投資與安裝成本,而沒有按照標準的安裝方式進行安裝。
現場整改措施: 在條件許可的情況下,機組盡量靠近門側安裝,風管機接送風管送風,以消耗部分靜壓,噪音明顯下降,如圖 2 所示。
現象二: 某展廳采用臥式暗裝風機盤管單側側送風,15 臺 FP-204WA 緊密布置,如圖 3 所示,機組運行后噪音超標,同樣引起客戶的不滿。
原因:
(1)為了降低設備初投資、與安裝成本,以及簡化系統,而選擇大型號風機盤管;
(2)設計者忽略了標準型風機盤管帶有 12Pa 機外靜壓,直接接風口送風,同樣會因機組靜壓偏大,導致機組噪音偏高,而且風盤布置太密集,造成噪音疊加,使噪音值偏大更多;
(3)設計者沒有考慮建筑噪音的要求,直接按室內冷負荷簡單選型。現場整改措施:
(1)考慮合理的氣流組織,可將 15 臺風盤分散布置在展廳兩側,采取對吹的方式送風;
(2)如果條件允許,可采用集中送風,將機組置于空調機房,如果噪音還是無法滿足,則可對機房和機組本身采取降噪措施;
(3)如果沒有空調機房,可根據冷量需求,將風機盤管改為 2 臺吊柜進行集中送風,同時在送風管和回風管上增加消聲裝置,以及對機組本身采取降噪措施。預設整改措施:
(1)根據建筑噪音的要求,盡量選擇噪音低的小型號室內機,如果單臺無法滿足,則宜選擇多臺,以降低噪音值;
(2)對于高靜壓風管機、帶靜壓的風機盤管,不允許直接側送風,而宜接風管送風,由于標準型風機盤管均帶有 12Pa 的機外靜壓,部分風管機也是非 0 靜壓的,接一段風管可消耗一部分靜壓,可有效的減小噪音,如果對噪音要求更高的場所,則還需在送風管和回風管處加消聲裝置,如圖4 所示。
(3)對于辦公、住宅、賓館客房等對噪音有一定要求的場所,機組的回風宜采用后回風形式,接風管或靜壓箱回風,同時安裝消聲裝置,而不宜采用下回風;
(4)盡量避免兩臺室內機緊密布置,造成噪音的疊加;
(5)若條件限制不得不選擇噪音過大的室內機,設計時應考慮降噪措施;
(6)對于面積較大、層高較高的場所,盡量采用集中送風,并對機組本身增加消聲減振措施,以及在送風管和回風管上增加消聲裝置。
3、中央空調全熱新風換氣機設計常見問題
現象一: 某工程新風采用全熱新風換氣機處理新風,但新風入口與排風口布置太近,影響新風換氣機的有效新風量從而降低了室內空氣品質,同時熱回收效率也會下降,如圖 5 所示。
(原因: 新風口與排風口太近,會使部分氣流短路,一部分排風通過新風管道進入室內,使有效新風量有所減少,影響室內空氣質量,達不到空調所需新風量的要求;
一部分排風回灌室內,在減少有效新風量的同時,部分排風與新風混合也降低了新風的進氣溫度,因而新排風的溫差減小,從而使新風換氣機的熱回收率降低;造成新風與排風短路的因素有:
(1)設計者便于風管布置,沒有按《采暖通風與空氣調節設計規范》GB50019-2003 的要求設置新風口與排風口,《采暖通風與空氣調節設計規范》GB50019-2003 第 5.3.4 條規定:進風口應低于排風口,同時應避免進風、排風短路。
(2)建筑圍護結構與甲方要求無法滿足新風與排風口的合理布置,設計者為了符合建筑要求,方便布置風口而違反規范。
整改措施:
(1)按《采暖通風與空氣調節設計規范》的要求,更改新風與排風口的
(2)在無法避免氣流短路的條件下,設置導流風管或擋風板隔開新風口與排風口,避免新風、排風短路,對于我司產品新風入口和排風出口間距至少要保證 H≥4m。
現象二: 某工程設計的全熱新風換氣機的氣流方向與產品的不一致,設計為氣流交叉換熱,而產品為并行換熱,如圖 6 所示。
原因: 若施工人員不弄清楚產品的新風與排風的氣流方向,按設計圖紙直接安裝,很容易造成新風走排風管道,排風走新風管道,嚴重影響空調效果。造成氣流方向不一致的主要原因是:設計者不熟悉格力產品,按市場上流行的產品設計。整改措施: 更改設計圖紙中的新風管與排風管的布置和氣流方向,使施工圖紙的氣流方向與格力產品的氣流方向一致,如圖 7 所示。
湖南酷威冷暖專業從事長沙中央空調設計安裝、維修保養、中央空調空氣凈化等業務十多年,我們堅持為客戶提供超出預期的專業服務,獲得了數萬客戶的一致認可!
| Copyright @ 湖南酷威機電設備有限公司 All rights reserved.【備案號:湘ICP備19006145號-2】 長沙中央空調首選湖南酷威中央空調公司,多家知名企業,單位,高端樓盤業主等用戶的最佳選擇單位,長沙格力中央空調一站式服務供應商,種類齊全,價格優勢,品質保障,專業的設計安裝團隊,強大的售后服務,長沙家用中央空調長沙中央空調服務熱線:4001-822-655 |